Planning & Permit Specialist

ADUs, JADUs
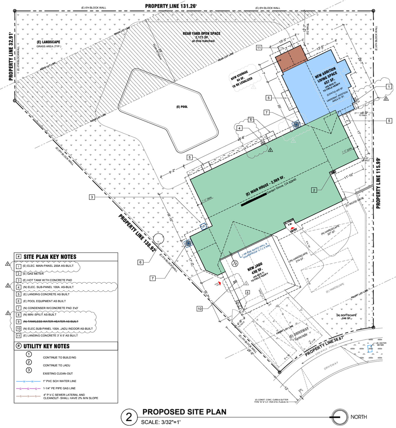
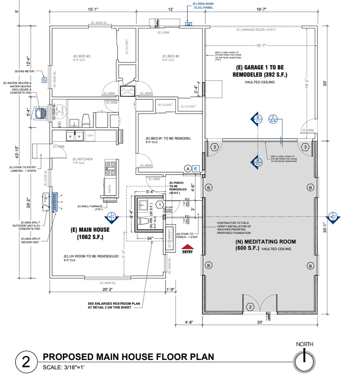
Additional Living Space
Legalization
Tenant Improvement

Thinh's Name
Thinh Q. Ho

Project Manager/Designer

Huy Nguyen
Huy Nguyen

Drafting Manager

ABOUT US

"At H&N Group, we provide professional drafting and engineering services tailored to homeowners and developers across Orange County, California. We specialize in Accessory Dwelling Units (ADUs), Additional Living Space, Legalization, and Tenant Improvements—helping our clients unlock the full potential of their property with our team’s 8 years experience in the industry.

Our team focuses on accuracy, building code compliance, and clear design to ensure your plans move as quickly and smoothly through city approval. Whether you’re adding a backyard unit or converting existing space, we’re here to turn your vision into reality. At H&N Group Ltd., we uphold the highest standards in drafting and engineering practices to deliver lasting value."

Attached/Detached ADUs

Standalone or seamless additions living spaces designed for flexibility, rental income, or family use. Our drawings ensure your ADU blends perfectly with your primary structure. We create detailed, code-compliant plans that make the permitting process faster and easier.

Additional Living Space

Whether it’s a new bedroom, office, or family room, we design functional and comfortable spaces that enhance your home’s livability. Our plans prioritize smart layouts, efficient use of space, and seamless integration with your existing structure, giving you more room without compromising style or compliance.

Legalization

If you have an unpermitted unit or past construction that needs to be brought up to code, we specialize in legalization services. Our team carefully reviews existing conditions, prepares code-compliant drawings, and guides you through the approval process to ensure your property meets all city requirements—helping you avoid fines while adding real value.

Tenant Improvement

For commercial or residential rental properties, we provide tenant improvement plans that balance functionality, compliance, and cost-effectiveness. Whether you’re renovating for a new tenant, upgrading for business operations, or modernizing your space, we deliver designs that meet your needs while satisfying local codes and landlord requirements.

Permit-Ready Drafting

From site plans to construction drawings, we deliver precise documents that meet local requirements and help you gain approvals without delays. Contact us today for consultations!

Contact Us

“Ready to get started with your project? Reach out to us today for consultation and let’s bring your vision to life with precision drafting and reliable expertise.”